ID CP2725876

Oferim parcele de vânzare în cartier nou din Moșnița Nouă - pentru dezvoltatori!

ID CP2725876

54,000 € + 21% TVA

Teren de 600 mp de vânzare
Mosnita Noua
600 mp

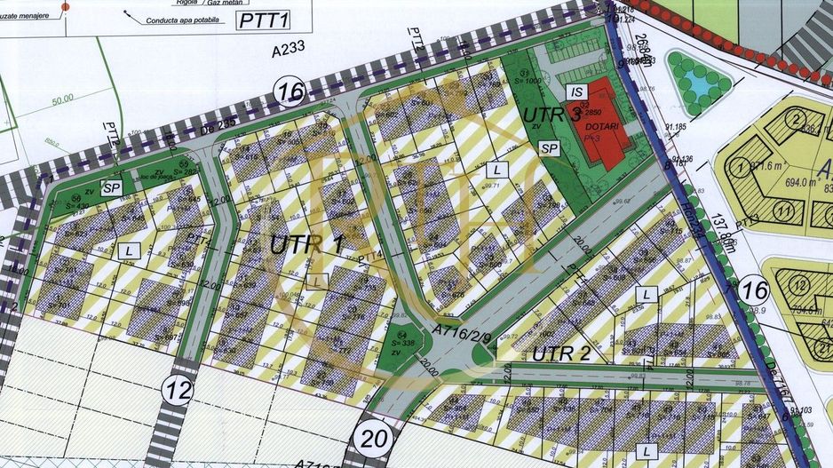
Cartierul Basmelor este un proiect rezidențial unic, conceput cu atenție la detalii și gândit pentru a oferi un stil de viață modern, liniștit și sustenabil, în inima dezvoltării urbane din Moșnița Nouă. Situat strategic în apropierea noii Primării și a noilor unități de învățământ, acest ansamblu reprezintă un punct de atracție pentru familiile care își doresc o locuință confortabilă, într-o comunitate organizată și în plină expansiune.

Proiectul cuprinde un total de 35 de parcele disponibile - construibile, fiecare amplasată astfel încât să permită acces facil și intimitate, cu trotuare amenajate pe întreaga suprafață a cartierului și iluminat stradal alimentat de surse solare, poziționat în fața fiecărei case. Cartierul este conceput să combine eleganța arhitecturii contemporane cu functțonalitatea modernă, punând accent pe eficiența energetică și integrarea în peisajul natural.

În cadrul proiectului sunt dezvoltate 16 vile semi-decomandate de lux, fiecare construită pe baza unor standarde ridicate de calitate și confort. Locuințele sunt de diverse dimensiuni și compartimentări, pentru a răspunde nevoilor variate ale familiilor moderne. De asemenea, parcelele sunt pregătite atât pentru construcții de tip casă individuală, cât și pentru locuințe semi-decomandate, oferind flexibilitate maximă pentru viitorii proprietari.

Terenurile sunt disponibile cu toate utilitățile esențiale deja instalate, inclusiv rețea de gaz, electricitate, apă, fose septice cu sistem de drenaj eficient și conectivitate prin fibră optica de mare viteză, asigurând o experiență de locuire completă și modernaă Mai mult, o parte din parcele beneficiază de autorizații de construire deja aprobate, ceea ce permite începerea imediată a lucrărilor pentru cei care doresc să își construiască propria casă într-un timp scurt.

Prima fază a dezvoltării, care cuprinde complexul de 16 vile familiale, se află în stadiu avansat de finalizare, iar primii locatari s-au mutat deja în noile lor locuințe, contribuind la formarea unei comunități închegate și primitoare.

Cartierul Basmelor nu este doar un proiect imobiliar, ci o viziune bine conturată asupra modului în care ar trebui să arate traiul urban de calitate, într-un cadru natural, sigur și prietenos cu mediul. Este locul unde fiecare poveste de familie își poate începe noul capitol.

Parcelele se vând doar către dezvoltatori imobiliri!!!

Spreafețele parcelelor variază între 600 mp și 1003 mp!

Prețurile parcelelor variază între 46.500 - 87.000 euro + TVA (la achiziționarea a cel puțin 4 - 5 parcele, prețul e negociabil) cu comision zero din partea agenției!!!

Aceaste proprietăți sunt reprezentate de RealTimHouse.ro - Un pas spre un loc doar al tău!

Citește mai mult

  • Tip teren
    Construcții
  • Suprafață teren
    600 mp
  • Front stradal
    30.0 m
  • Număr fronturi stradale
    1
  • Deschidere la
    Șosea
  • Distanța față de drum județean
    1.0 km
  • Distanța față de utilități
    11.0 m
  • Construcție pe teren
    Da
  • Suprafață construită
    200 mp
  • Lățime drum acces
    4.0 m
  • Clasificare
    Intravilan
  • Valoare incidență
    230.77
  • Disponibilitate
    Imediat
  • CUT
    0.39
  • POT (%)
    29.0
  • Autorizație de construcție
    Da
  • PUZ Aprobat
    Da
  • PUD Aprobat
    Da
  • Certificat de urbanism
    Da
  • Număr etaje clădire
    2

Facilități

Acces auto
Apă
Curent
Gaz
Iluminat stradal
La șosea
Mijloace de transport în comun
Oportunitate de investiții
Parcare deschisă
Străzi de pământ
Străzi pietruite
Studiu Geo
Balica Daniel - RTH Imobiliare
Balica Daniel
Manager

0763810342


Solicită chiar acum o vizionare
Nume
Telefon
Email
Sună acum Solicită vizionare
Necesare:

Site-ul nu poate funcționa corect fără aceste cookie-uri. Vezi cookie-urile

Statistică:

Strângem statistici anonime despre voi, vizitatorii unici, pentru a vă îmbunătăți experiența dumneavoastră. Vezi cookie-urile

Marketing:

Pentru a ne promova mai eficient serviciile noastre, folosim cookies pentru a vă identifica și a vă oferi proprietăți și servicii personalizate. Vezi cookie-urile

Acest site folosește cookies, află detalii. Alege ce tipuri de cookies dorești să permitem: